J.O Wilson ES VRF Upgrade, Washington, D.C.

AdobeStock_181206822.jpeg
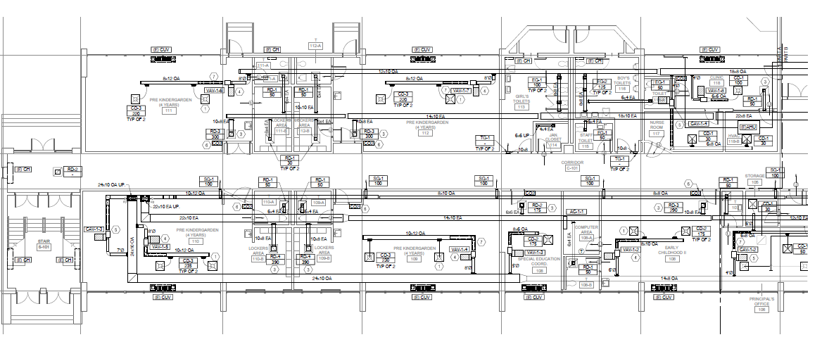
HVAC System Upgrade
 
J.O.-Wilson-Elementary-1024x768.jpg

As part of the DCPS modernization program, J.O. Wilson Elementary School is undergoing a HVAC modernization and revitalization to ensure students and teachers are working in optimal conditioned spaces. The upgrade to VRF will also allow for DCPS to capitalize on energy efficient technologies often deployed in commercial projects. For this project, SETTY services include complete design services for replacing the existing HVAC System and all associated and adjacent equipment, in support of our design-build partner Keystone Construction .

 
34.PNG

This project will be completed in two phases spread over two school years, which began in the Summer of 2019 and culminating prior to the start of the 2020-21 school year.